Μαιζονέτα 4ου – 5ου ορόφου, οδός Αρκαδίου, Ηλιούπολη

ΑνακαινίσειςΙδιωτικά Έργα

Πελάτης: Ιδιώτης

Προϋπολογισμός: -

Τοποθεσία: οδός Αρκαδίου, Ηλιούπολη, Αθήνα

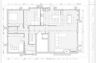
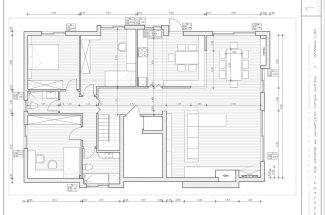
Ανακαίνιση διαμερίσματος 4ου– 5ου ορόφου επιφάνειας 180 τ.μ. στην οδό Αρκαδίου, στην Ηλιούπολη Αττικής.

  • Πλήρης εκσυγχρονισμός του διαμερίσματος, τόσο λειτουργικά όσο και τεχνολογικά.
  • Στοχευμένες επεμβάσεις στις τοιχοποιίες του 4ου ορόφου προκειμένου να ενοποιηθούν οι κοινόχρηστοι χώροι.
  • Αλλαγή διαρρύθμισης στον 5ο όροφο με στόχο τη δημιουργία αυτόνομου studio παράλληλα με την εξυπηρέτηση του βατού δώματος.
  • Ριζικές επεμβάσεις στις ηλεκτρομηχανολογικές εγκαταστάσεις.


Επιστροφή στην κατηγορία