Τετραώροφο κτίριο κατοικιών σε pilotis με υπόγειο χώρο στάθμευσης, Λάρισα

Ιδιωτικά ΈργαΜελέτες

Πελάτης: Ιδιώτης

Προϋπολογισμός: 31.000 €

Τοποθεσία: Λάρισα

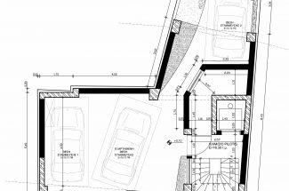
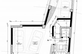
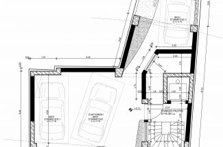
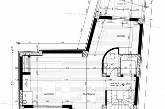
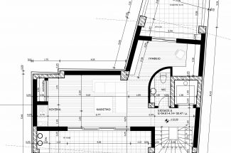
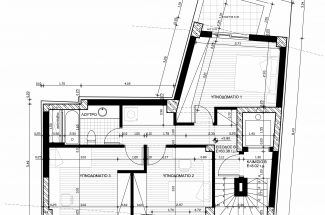
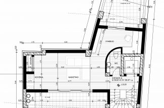
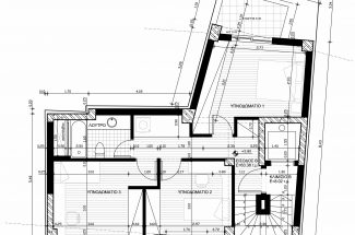
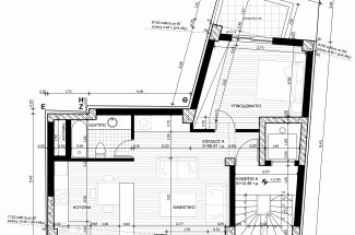
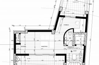
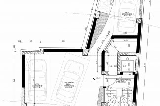
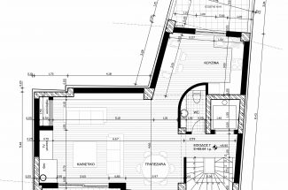
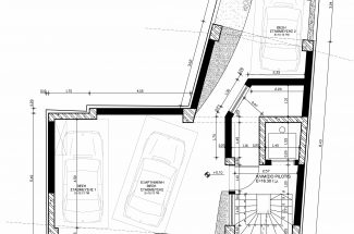
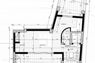
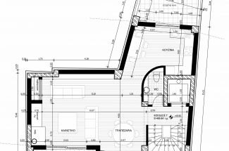
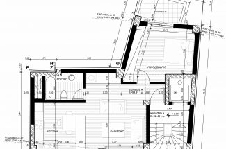
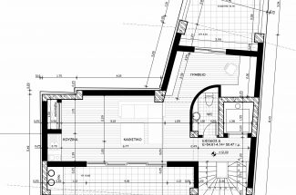
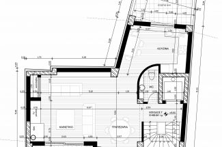
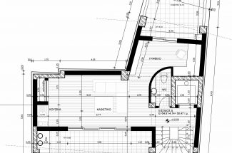
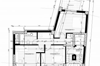
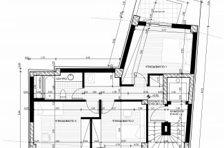
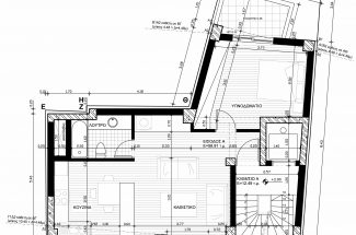
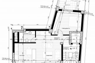
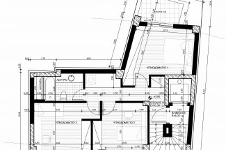
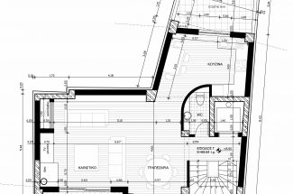
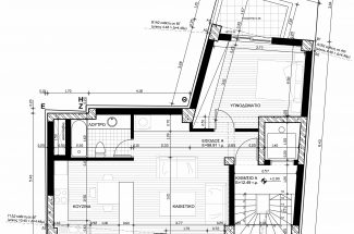
Μελέτη, μοντελοποίηση σε 3 διαστάσεις (3D) και έκδοση οικοδομικής άδειας για τετραώροφο κτίριο κατοικιών σε pilotis επιφάνειας 264 τ.μ επί των οδών Μιαούλη / Κομνηνών στη Λάρισα.

 

  • Μικρή επιφάνεια οικοπέδου με πολλές απαιτήσεις σε κτιριολογικό πρόγραμμα.
  • Διαμπερής pilotis για αξιοποίηση της διπλής όψης του οικοπέδου προς οδούς Κομνηνών και Μιαούλη.
  • Οργάνωση θέσεων στάθμευσης στην pilotis.
  • Υπόγειος χώρος με αποθήκες.
  • Διαμέρισμα στον 1ο όροφο.
  • Ενιαία μαιζονέτα 180 τ.μ. με εσωτερικό κλιμακοστάσιο στους 2ο, 3ο και 4ο  όροφο.

 



Επιστροφή στην κατηγορία