Πενταώροφο κτίριο κατοικιών σε pilotis με υπόγειο χώρο στάθμευσης, Ηλιούπολη

Ιδιωτικά ΈργαΜελέτες

Πελάτης: Ιδιώτης

Προϋπολογισμός: 58.000 €

Τοποθεσία: Ηλιούπολη, Αττική

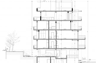
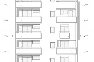
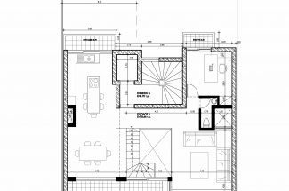
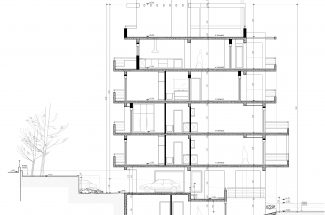
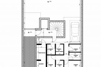
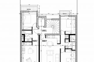
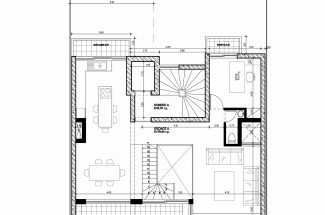
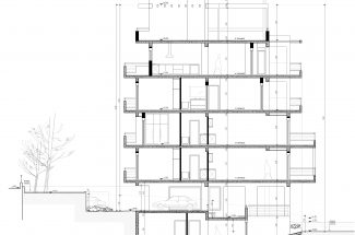
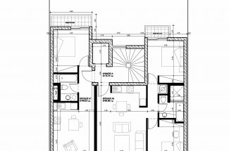
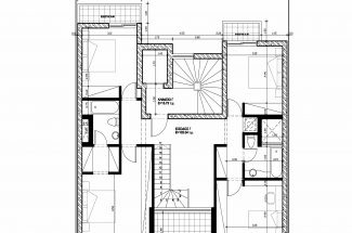
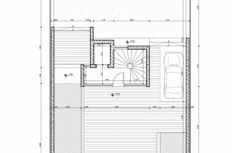
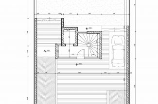
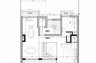
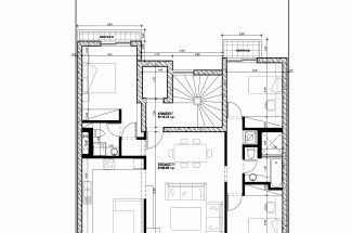
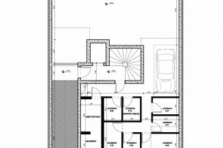
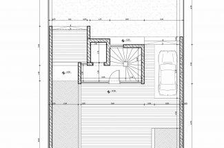
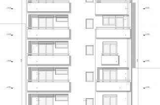
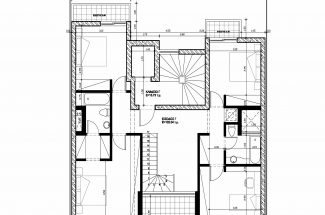
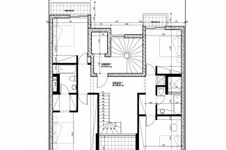
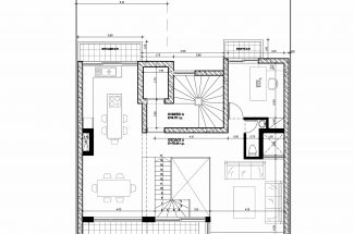
Μελέτη, μοντελοποίηση σε 3 διαστάσεις (3D) και έκδοση οικοδομικής άδειας για πενταώροφο κτίριο κατοικιών σε pilotis επιφάνειας 518 τ.μ. στην οδό Αισώπου, στην Ηλιούπολη Αττικής.

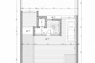
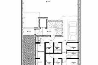
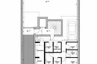
  • Υπόγειος χώρος με αποθήκες και θέσεις στάθμευσης.
  • Διαμπερής pilotis με κήπο και χώρο στάθμευσης.
  • Αντιμετώπιση της έντονης κλίσης του οικοπέδου με υπερύψωση της pilotis και οργάνωσή της σε δύο επίπεδα.
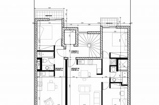
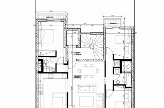
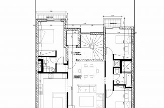
  • Διαμερίσματα σε 1ο και 2ο όροφο.
  • Ενιαία μαιζονέτα 180 τ.μ. με εσωτερικό αίθριο στους 3ο και 4ο  όροφο.
  • Βοηθητικός χώρος 20 τ.μ. στον 5ο όροφο για εξυπηρέτηση του roof garden.


Επιστροφή στην κατηγορία