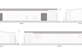
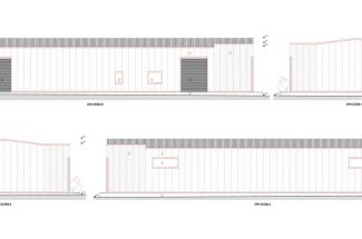
Βιομηχανικό κτίριο επεξεργασίας ξηρών καρπών, Νέα Λεύκη, Λάρισα

Ιδιωτικά ΈργαΜελέτες

Πελάτης: Π. Νατσίδης Ο.Ε.

Προϋπολογισμός: 55.000 €

Τοποθεσία: Νέα Λεύκη, Λάρισα

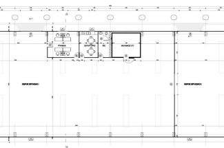
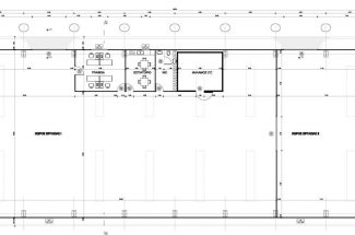
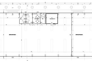
Μελέτη και έκδοση οικοδομικής άδειας για εργοστασιακή μονάδα επεξεργασίας ξηρών καρπών συνολικής επιφάνειας 980 τ.μ. στη Νέα Λεύκη, Νίκαιας, Λάρισας.

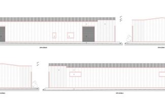
  • Μεταλλικός φέρων οργανισμός σε βάση από μπετόν.
  • Panel πολυουρεθάνης στην περίμετρο του κτιρίου και στο εσωτερικό για τον διαχωρισμό των χρήσεων.
  • Στέγη από φύλλα αλουμινίου.
  • Δύο χώροι εργασίας, γραφεία, εστιατόριο, αποδυτήρια, λουτρό, wc.
  • Ειδικές απαιτήσεις του κτιριολογικού για αυστηρό διαχωρισμό σε δύο χώρους, συλλογής και επεξεργασίας.
  • Οργάνωση περιβάλλοντος χώρου με parking φορτηγών και φύτευση στο μεγαλύτερο τμήμα του οικοπέδου.
  • Μελέτη διατάξεων ρύθμισης της υγρασίας και θερμοκρασίας του χώρου «ψυγείου».
  • Ειδική κατασκευή ηλεκτρικών δικτύων.


Επιστροφή στην κατηγορία